Opis
Pracowaliśmy nad tym projektem ponad 8 miesięcy, został on tak przygotowany aby każdy kto chce mieć własny dom i nie chce żyć w 30 letnim kredycie mógł go samodzielnie zbudować. Użyliśmy najprostszych i sprawdzonych od lat rozwiązań, w projekcie nie ma żadnych udziwnień. Priorytetem w stworzeniu tego projektu była prosta bryła i satysfakcjonujący metraż. Nie było łatwo, ale po takim czasie możemy stwierdzić jedno: Udało się!
Projekty dostępne do wysyłki
undefined
W zestawie otrzymasz:
Istrukcja budowy do SSO 245stron do projektu Dom 63m2 szkieletowy
Wersja drukowana dostawa gratis kurier Inpost!
Co zawiera instrukcja budowy:
– jak wykonać fundament krok po kroku
– jak wykonać szkielet krok po kroku
– jak wykonać więźbę dachową
Informacje jakich wkrętów, jakich gwoździ użyć, jakich kątowników, w jaki sposób łączyć.
UWAGA:
Instrukcja nie zawiera informacji jak wykonać dach ponieważ jest to zależne od producenta blachy na rąbek jaki zamówicie, na stronach producentów są dokładne instrukcje. W instrukcji dach jest zrobiony i pokazany włącznie z łatami i kontrłatami, gotowy do położenia blachy.
Instrukcja nie zawiera informacji jak wykonać instalacje elektryczne ani wod-kan
Instrukcja do domu zwykłego NIE ODBICIE
Instrukcja zawiera kosztorys każdego etapu budowy, zawiera listę materiałów z deskami co milimetra spisanymi na cały dom. Tak samo instrukcja nie zawiera informacji jak wykonać ściany działowe, jest pokazana tylko ściana nośna jak ją wykonać, ponieważ układ w środku każdy może zmienić.
Kosztorys jest podany na ceny na 2020r! Możecie stwierdzić że ceny są mocno zawyżone do aktualnych ale właśnie dlatego żeby kosztorys pokrył się z 2020r a nawet 2021r.
W skrócie o kosztach:
Stan SSO ale włącznie z podłogą do stanu zero (czyli podłogą na którą już kładziecie panele podłogowe czy płytki, a w normalnych wycenach ten etap nie jest brany pd uwagę) razem: 20576,2+3000zł na usługę koparki i geodetą do wyznaczenia osi (3000zł zawiera wykop oraz zasyp i geodetę)
Fundament: 23576,20
Szkielet i więźba, opłytowanie OSB 15mm środek i na zewnątrz, ocieplenie szkieletu, dach, komin: 53780
Razem stan SSO z podłogą do stanu zero: 77356,20
UWAGA! Kosztorys zawiera wszystkie koszta dostaw! Stali, drewna itd… tak samo ocieplenie stropu.
SSO: 77356,20
Drzwi: 3000
Okna: 15000
SSZ: 95356,20
Ocieplenie z zewnątrz: 10000
Elektryka materiał: 5000
Hydraulika materiał z ogrzewaniem podłogowym: 5000
Piec: 10000
Ściany działowe: 5000
Płyty gk, fizelina, farba: 3000zł
Stan deweloperski: 133356,20
Projekty dostępne do wysyłki
Jest to pierwsza w Polsce taka inicjatywa, w której łączy się firma budująca duże domy i firma zajmująca się tylko małymi domami, wypracowany w 8 miesięcy projekt jest efektem tej współpracy.
Wersja zwykła salon po lewo, wersja odbicie lustrzane salon po prawo
W każdym naszym projekcie została wpisana zgoda na zmiany, która nie wymaga już kontaktu z nami. Ta domyślna zgoda dopuszcza wykonanie zmian w zakresie:
– zmiany otworów okiennych i drzwiowych oraz okien połaciowych wg potrzeb Inwestora (likwidacja okien i drzwi, zmiana lokalizacji, powiększenie, pomniejszenie)
– przesunięcie drzwi, zmiana układu ścianek działowych
– zmianę stropu
– zmianę konstrukcji dachu
Także podniesienie ściany kolankowej w celu uzyskania wyższego poddasza
Najczęściej zadawane pytania:
Jaki jest kąt dachu? 30 stopni
Czy można zmienić kąt dachu na większy? Tak, wyrażamy zgodę na zmianę konstrukcji dachu
Jakie jest przewidziane źródło ciepła? kocioł gazowy
Czy mogę zmienić układ pomieszczeń w środku? Tak wyrażamy na to zgodę
Z czego będzie pokrycie dachu? Blacha na rąbek stojący
Czy w domu jest kotłownia? Tak na rzucie po wejściu do mieszkania po lewo pomieszczenie techniczne
Czy mogę poszerzyć lub przedłużyć dom o 2m żeby uzyskać więcej miejsca? Tak, wyrażamy na to zgodę przy adaptacji
Jaka wysokość jest na strychu? 189cm
Czy mogę podwyższyć strych? Tak można podwyższyć strych i wykorzystać później jako poddasze podczas adaptacji.
Czy mogę po zakończeniu budowy taki dom rozbudować? Tak można to zrobić poprzez rozbudowę o 35m2 w ten sposób: link lub o większą powierzchnię na pozwolenie na budowę
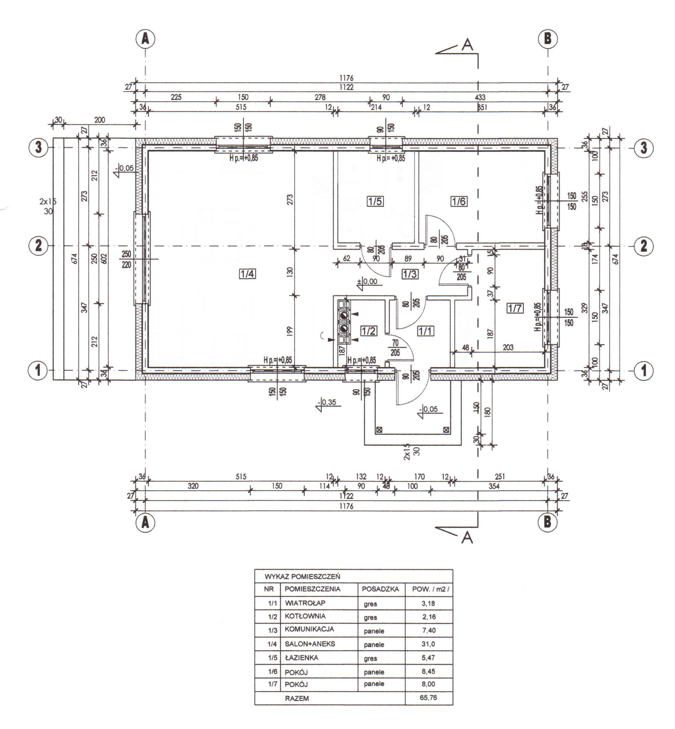
Wiatrołap: 3,18m2
Pomieszczenie techniczne: 2,16m2
Hall: 7,40m2
Kuchnia+salon: 31m2
Łazienka: 5,47m2
Pokój 1: 8,95m2
Pokój 2: 8m2
Powierzchnia użytkowa: 63,60m2
Powierzchnia zabudowy budynku: 79,26m2
Minimalne wymiary działki
Szerokość: 19,76m
Długość: 14,74m
Powierzchnia i wymiary:
Długość: 11,76m
Szerokość: 6,74m
Powierzchnia użytkowa: 63,60m2
Powierzchnia zabudowy: 79,26m2
Kubatura: 360,63m³
Wysokość budynku: 5,52m
Kąt nachylenia dachu: 30°
Technologia i konstrukcja:
Ściany: drewniane, szkieletowe
Dach: blachodachówka
Technologia: szkieletowy
Projekt zawiera także:
Instalacje wod-kan. i C.O
Instalacje elektryczne
W paczce otrzymasz 3+3 egzemplarze projektu oraz rachunek.
3egz projektu architektonicznego
3egz projektu technicznego
Dostawa od 1-14 dni przeważnie do 5 dni roboczych.
Uwaga projekty w promocyjnych cenach nie podlegają zwrotom i wymianom, prosimy zastanowić się przez złożeniem zamówienia. Akceptując regulamin potwierdzacie Państwo że zakupiony przez Was projekt w cenie promocyjnej nie ulega zwrotom ani odstąpieniu od umowy. Projekty są drukowane na Państwa zamówienie.
Na naszych kanałach będą publikowane filmy z budowy domu MUROWANEGO : na kanale Haharbud długie filmy z szczegółowym wytłumaczeniem budowy od A do Z, a na kanale Zbuduj sam dom krótkie filmy z budowy. Zasubskrybuj jeżeli chcesz być na bieżąco.
Szczegółowe instrukcje budowy domu


















